Luxury Not To Be Expensive

বসুন্ধরা K-ব্লকে লাক্সারি অ্যাপার্টমেন্ট— Land Share বুকিং চলছে।

মোট ইউনিট

32

সাইজ

≈ 3000 sft

প্রতি শেয়ার

৳ 72 লাখ

এলাকা

Bashundhara
K-Block

মোট ইউনিট

64

সাইজ

≈ 2250 sft

প্রতি শেয়ার

৳ 54 লাখ

এলাকা

Bashundhara
K-Block

প্রজেক্ট হাইলাইটস

⭕  পরিকল্পিত আবাসিক এলাকা।
⭕  বহুমুখী প্রবেশপথ।
⭕  নিষ্কণ্টক জমি।
⭕  নির্দিষ্ট সময়ের মধ্যে ফ্ল্যাট হাতে পাওয়ার নিশ্চয়তা।
⭕  ফ্ল্যাট রেজিস্ট্রেশনে খরচ লাগে না। কার পার্কিং ও ইউটিলিটি চার্জ দিতে হয় না।
⭕  ফ্ল্যাটের অভ্যন্তরীণ ডিজাইন ইচ্ছামতো করা যায়।

সুবিধাসমূহ

ফ্যামিলি-ফ্রেন্ডলি লে-আউট

উচ্চমানের ফিনিশিং ও স্যানিটারি

ডেডিকেটেড পার্কিং

ফায়ার ফাইটিং সিস্টেম

২৪/৭ সিকিউরিট

রুফটপ গার্ডেন/BBQ

জিম ও কমিউনিটি হল

কিস্তিতে নির্মাণ খরচ প্রদানের সুবিধা

ফ্লোর প্ল্যান

৪ বেড ৫ বাথ B2+B1+G+M=16

প্রপোজ্ড ফ্লোর প্ল্যান

গ্রাউন্ড ফ্লোর প্ল্যান​

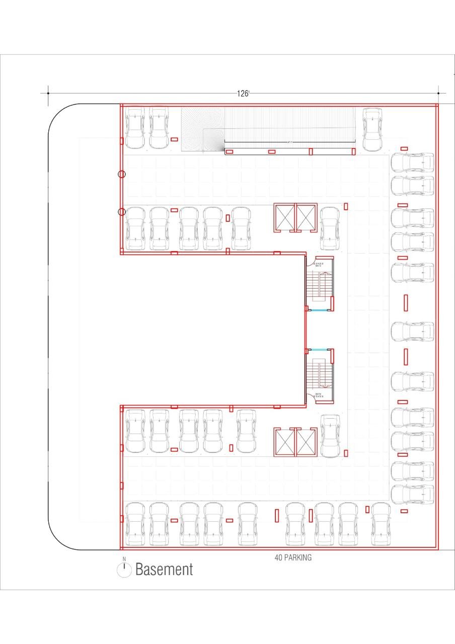
বেজমেন্ট ফ্লোর প্ল্যান​

ল্যান্ড শেয়ার কিভাবে কাজ করে ?

১) বুকিং দিয়ে শেয়ার কনফার্ম করুন।

২) জমির রেজিস্ট্রেশন সম্পূর্ন।

৩) সহজ কিস্তিতে ফ্ল্যাট বুঝে নিন।

গ্যালারি

প্রজেক্ট লোকেশন

(বসুন্ধরা কে-ব্লক)

মিশন ও ভিশন

বাংলাদেশের আবাসন বাজার বর্তমানে দ্রুত বিকাশমান।
বিশেষত ঢাকার অভিজাত এলাকা বসুন্ধরা আবাসিক প্রকল্পে আধুনিক ও লাক্সারিয়াস অ্যাপার্টমেন্টের চাহিদা দিন দিন বাড়ছে। আগামী বহু বছর শুধুমাত্র বসুন্ধরা আবাসিক এলাকাতেই প্রপার্টি ব্যবসা চালিয়ে যাওয়া সম্ভব।

এই চাহিদাকে সামনে রেখে আমরা একটি বিশেষ প্রকল্প গ্রহণ করেছি—৪০ কাঠা জমির উপর দুটি টাওয়ারে মোট ৯৬টি আধুনিক লাক্সারিয়াস অ্যাপার্টমেন্ট নির্মাণ।

আমাদের লক্ষ্য শুধু একটি আবাসন প্রকল্প নয়, বরং একটি শক্তিশালী ও দীর্ঘমেয়াদি রিয়েল এস্টেট ডেভেলপার কনসোর্টিয়াম প্রতিষ্ঠা।

ক্লায়েন্টস রিভিও

কাজের টাইমলাইন

Reg Done by

January - 2026

Construction Start by

July - 2026

Building Handover by

July - 2030

Scroll to Top